Haus mit Showroom
Die Architektur ist geprägt von plastisch geformten Baukörpern, die durch große Rahmen- und Kragelemente eine markante Raumwirkung erzeugen. Diese linearen Strukturen verleihen dem Haus eine unverwechselbare Identität und setzen die streng horizontale Gliederung bewusst in Szene.
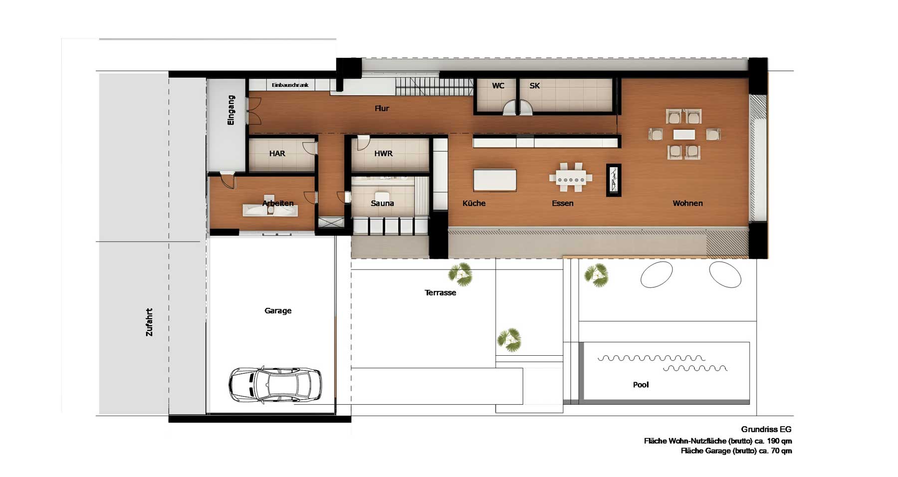
Eine großzügige Verglasung öffnet das Gebäudeinnere zur Terrasse, die als großzügige Aufenthaltsfläche mit modernen Loungemöbeln und situativen Sitzbereichen konzipiert ist, welche unterschiedliche Raum- und Blickbeziehungen zum Garten ermöglichen. Hier entstehen fließende Übergänge zwischen Wohn- und Außenraum, verstärkt durch den Wasserbereich, der als gestalterisches Element die klare Geometrie der Architektur aufnimmt.
Besonderer Bestandteil der Gesamtgestaltung wird die Einbindung des Carports: Das abgestufte Bauwerk nimmt das Auto als architektonisches Element ebenso selbstverständlich wie repräsentativ in das bauliche Ensemble auf.


